Oct. 2024
This project need to design a room for dementia people.
Those people wanted to have a life, and the help, our help, to deal with that dementia.
So, what they need? Just a normal room, A place that they don’t feel confuse. They were confuse already I don’t want we adding more confuse to their confuse.
——Yvonne van Amerongen

Design Statement
Dementia is a sick that can affect people’s brain, that makes people’s brain confuse and affect their sensitive. As a designer we should to think about what they really need, what they really wanted, rather than to do some thing like to make hospital that make all of people feel very bad.
What are they really wanted? ‘Those people wanted to have a life, and the help, our help, to deal with that dementia.’ this is we main focus on, nobody want to live in a place that like a hospital with nurse and doctor who wear the uniform all day. They were dementia, they even may don’t know their has got dementia, they just feel more confuse about the environment, a space like a hospital.
Therefore, for the private room I want to make a room which looks like a hotel room with professional details. This place just a temporary place to live, so I think this place should be designed different from home, but not like a hospital. So, the hotel is the best choice I think, which can protect personal self-esteem and privacy to the greatest extent possible. I believe that will make people with the dementia feel better, they would feel this like a trip to the other place rather than feel anxieties or depressive.
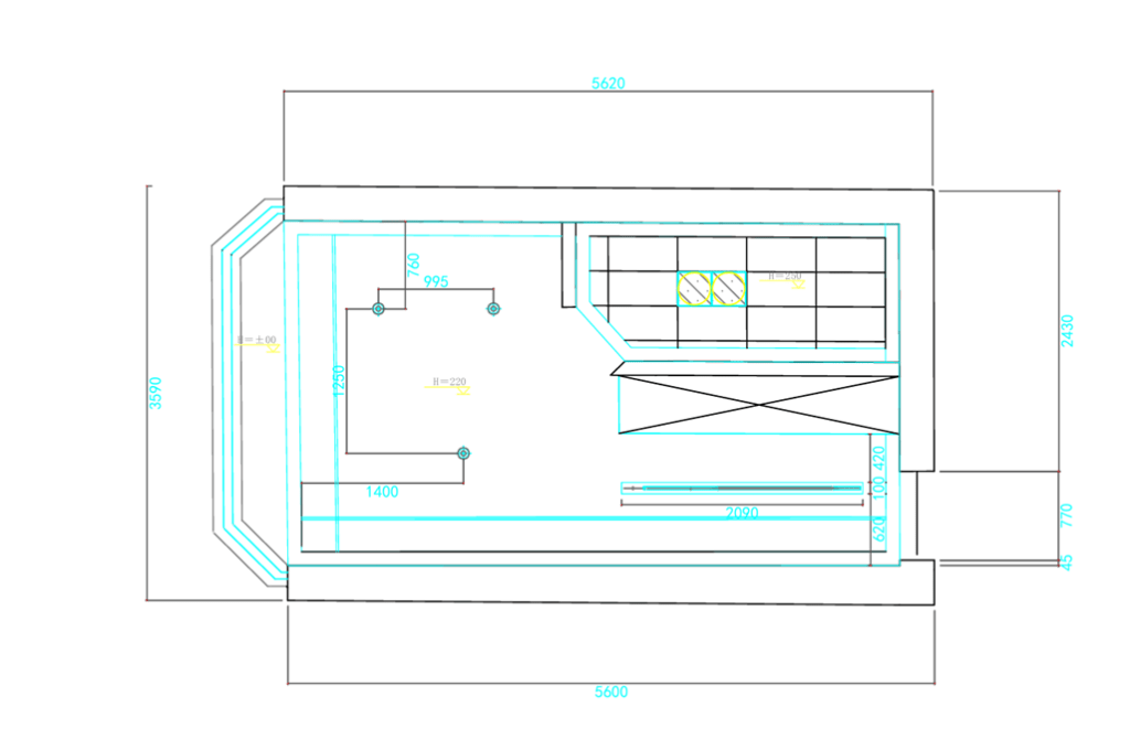
For the room design, I incorporated some subtle, suggestive lines. Since dementia patients may not be able to understand standard signage, I used these lines as visual cues to indicate directions, such as where to walk or where to stop. This helps guide their movements in a way that is both intuitive and safe.
Visual Effects
Physical Models
Orthographic Plan
Materials Specifications























